早期人类,为规避野兽、爬行动物的威胁以及蚊虫的侵扰,修建保护自己的房屋,随着人类的进步,人类居住的地方从洞穴到了木制和石制的房屋,在漫长的人类发展历史中,这样的房屋最终形成了人类建筑的起源。
而建筑,在漫长的人类发展历史中,一直在追寻着两个标准,实用性与美观性,随着地域风情与民俗民风的不同,建筑设计也展现出各种姿态,但不可否认的是,任何民族或者任何行业功能性建筑,永远离不开实用与美观的结合,更离不开在设计之前建筑者的思考。

(上图为中山王陵的立体复原图)
考古学家发现中山王陵平面图,也称《兆域图》,通过对兆域图上平面的实测与文字记录的尺寸的换算,发现这份设计图采用了1:500的比例尺缩制而成。用比例尺来代表建筑设计,也已经说明了建筑设计离不开前期的规划与建筑者的深层思考。
农贸市场建筑设计,起步较晚,
大多数人没有经过深层思考和解读,
忽略了农贸行业的本质,
这是当前农贸市场建筑设计的遗憾。
正因不可否认的遗憾,
以及人追求美好的天性,
故而有了今天的研究和明天的探索,
农贸市场建筑设计必将专业化、规范化。

(世界上最大的单体建筑:新世纪环球中心,位于成都)
2000多年前的古人在进行建筑设计时,已经在充分对主体建筑有着深层的思考,并付诸于合理的规划。2000多年后的今天,建筑设计开始演化出各种专业方向,农贸市场建筑设计属于建筑设计巨大范畴之中的一个专项分支,犹如轻舟之于大海,很多从业者在进行农贸市场建筑设计时,奉行拿来主义。更有甚者未经考察就凭想象完成设计,并没有对项目本身有着深层的思考,不去深究于农贸市场建筑设计中的农贸特性,和其它种类的建筑设计混为一谈,不尊重项目所在地域的风俗习惯,对专业的需求被忽略,是一大遗憾。
在专业化设计和运作了数以百计的农贸项目后,可以总结出80%以上的农贸市场都具有建筑层面的缺憾,先天不足导致项目增加成本、运作不佳。农贸市场建筑设计,一定要掌握农贸特点,以及理解农贸市场内各业态的经营模式,在这里做一个案例详解。
农贸市场建筑设计的排水设计
建筑设计没有预留排水沟,结构排水沟位置、宽度、深度不满足需求,让农贸市场排水设计无从入手,最终方案有二。一、条件允许的前提下,整层地面增加垫层,用以满足排水沟的深度要求,从而导致大幅度增加建设成本;二、条件不允许,极大程度简化排水设施,让农贸市场达不到使用功能,尤其是水产等业态排水不畅,导致市场环境极差。
农贸市场建筑设计的平面利用
建筑设计未充分考虑农贸市场其商业特性、动线特性,建筑内死角较多、深度较大,殊不知农贸市场不比其它商业场所,经营单元的平均面积不宜过大,最终导致平面利用率大大降低,整体价值受损。

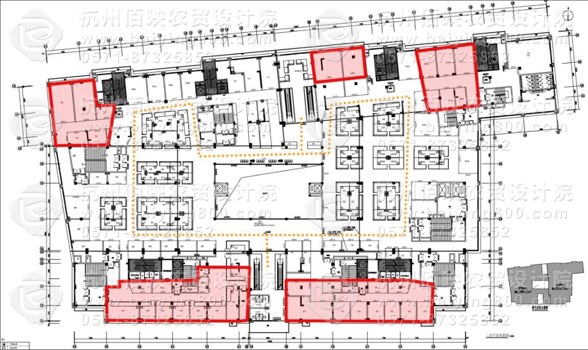
(上图为某农贸市场的二层平面布局图)
可以看到,在这个例子中,红色标注的营业区域远离购物主动线,且深度过深,原因是楼梯间、设备间等将平面分割开,形成了局部零散的几个区域。这样的平面布局设计并不理想,但在如此的建筑条件下实属无奈之举,只能从业态规划的角度去尽量吸引客流。这无疑是一次不成功的农贸市场建筑设计。
农贸市场建筑设计的柱距轴网
柱距和轴网是农贸市场建筑设计中的重中之重,而且一经定稿很难再做改动。在农贸市场摊位布局设计中,几乎所有的尺寸都取决于柱子与柱子之间的距离,而最合适的通道宽度、最合理的营业区域宽度、最规范的摊位宽度都是确定的数值,对柱距的要求十分严格,过窄的柱距会导致摊位拥挤无法经营,过宽的柱距会导致摊位空间浪费。

(上图为某农贸市场的局部摊位平面布局图)
在这个例子中,柱子过密,在预留2米宽通道之后,摊位总宽只有3.3米,而摊位内空部分仅有1.5米,背对背的两个经营者每人平均分得的活动宽度仅有0.7米,完全无法满足日常经营活动,更无法放下配套设备(如冰箱、操作台、水槽等)。要满足摊位的常规宽度4.5米以及通道的正常宽度2.5米,应该将柱距增加1.7米,那么这个摊位的布置就能够完美无瑕了,而现状如此别扭的摊位空间,完全是可以通过调整柱距来避免的。
农贸市场建筑设计的其他要求
层高,柱距,地面,出入口位置、宽度,垂直交通(即电梯楼梯位置),水电暖设备间,这些都是农贸市场建筑设计中的重点,需要根据农贸行业的特殊要求进行按需设计。这些内容将在后期的专项文章中逐一详述。
农贸市场建筑设计的实用性与美观性
对于农贸市场建筑设计来说,是一定要去遵循其实用价值的,因为农贸市场是民生工程,更是购买农贸产品的特殊场景,又基于农贸产品在储存和交易中的特殊要求,农贸市场建筑设计的实用性一定是要建立在农贸产品的特殊性之上。文中所涵盖的部分内容,即从农贸产品的特殊性出发,对农贸市场建筑设计的思考与研究。
农贸市场专项设计,可追溯到十年前即2009年,国家商务部试行的《标准化菜市场设置与管理规范》是最早的国家级农贸市场专项设计规范,虽然已经问世十年,但如今大部分农贸市场建筑设计仍然达不到规范要求,70%的农贸市场建筑设计者根本就不知道规范的存在,极其可悲。
农贸市场建筑设计,虽然门槛不高,但职业秩序和项目解读必不可少。从事农贸市场设计虽然在于建筑设计从业者考察过多少个农贸市场,完成过多少农贸案例,了解过多深的农贸市场经营规律;但更多的,在于对于农贸事业的专注,对农贸和农贸人的敬畏之心,对民生工程发自内心的透彻理解。
上一篇:农贸市场总图设计【第三章|第四节】 下一篇:农贸市场平面规划【第三章|第六节】
